50lik Sürme Serisi
Ürünlerimiz, yüksek kalite standartları ve dayanıklı malzeme yapısı ile uzun ömürlü kullanım sağlar. Gelişmiş tasarım ve teknolojisi sayesinde maksimum performans ve enerji verimliliği sunar. İhtiyacınıza uygun çözümlerle, estetik ve fonksiyonelliği bir arada bulabilirsiniz.Desen Seçenekleri
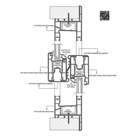
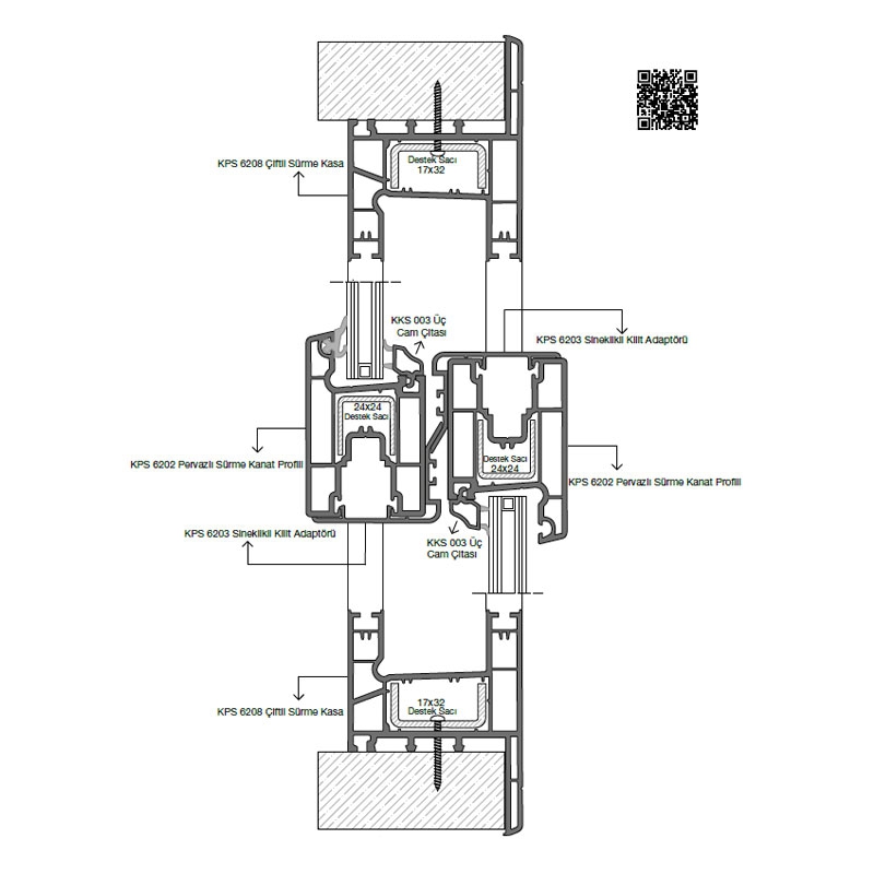
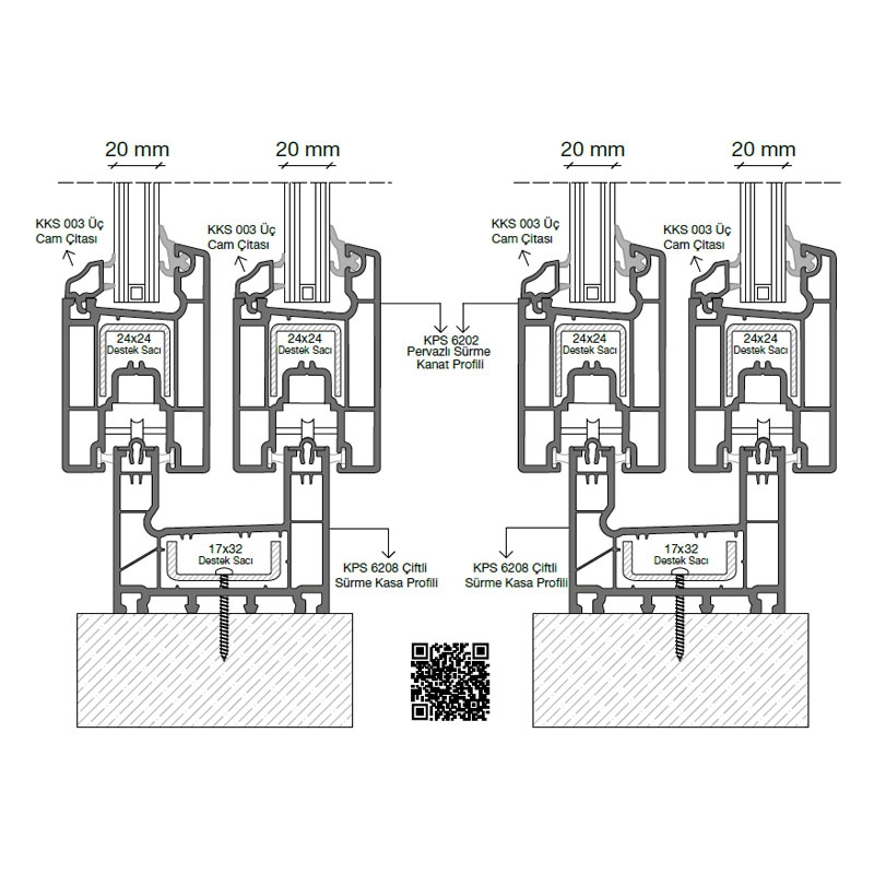
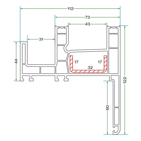
Ürün Açıklaması
Sineklikli veya Sinekliksiz Tasarım Seçenekleri
Sineklikli veya sinekliksiz modelleriyle estetik ve fonksiyonel çözümler sunar.
Ray Kanallı, Kapalı veya Açılabilir Yapı
Ray kanalları kapalı olarak tasarlanmış olup, istenildiğinde açılabilir özelliktedir.
Farklı Ara Boşluklarda Çift Cam Uygulama İmkanı
4 + 12 + 4 mm gibi değişik ara boşluklarda çift cam kullanımı için uygundur.
Estetik ve Pürüzsüz Yüzey ile Kolay Temizlik
Pürüzsüz ve şık yüzeyi sayesinde kolay temizlenir ve uzun ömürlüdür.
3D Uygulamalar
Desen Uygulamaları
İstediğiniz renklerde özel siparişleriniz Karpen tarafından hazırlanır.